사건번호 2025 타경 581
본건은 경기도 평택시 고덕동 1793-11 해이빌
소재하는 근린주택경매 물건의 포스팅입니다.
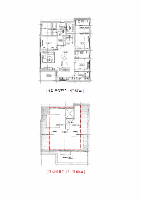
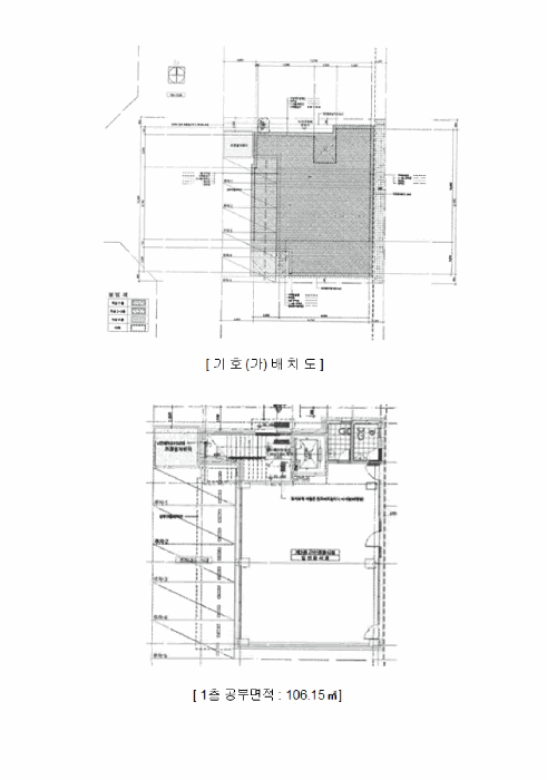
건물면적 [ 409.42㎡ (123.85평) ]
토지면적 [ 227.8㎡ (68.91평) ]
시세를 반영한 감정가 1,924,717,670에서
1회 유찰되어 감정가 대비 70%
최저가 1,347,302,369부터
입찰에 참여할 수 있습니다.
입찰보증금은 최저가 10%
134,730,237이며,
평택지원 경매5계에서
2026-02-24(10:00)
진행 예정입니다.
| 소재지 | [지번] 경기도 평택시 고덕동 1793-11 해이빌 [도로명 주소] 경기도 평택시 고덕갈평10길 36(고덕동) 해이빌 |
||||
|---|---|---|---|---|---|
| 용도 | 근린주택 | 채권자 | 오** | 감정가 | 1,924,717,670 |
| 건물면적 | 409.42㎡ (123.85평) | 채무자 | 이** | 최저가 | (70%) 1,347,302,369 |
| 토지면적 | 227.8㎡ (68.91평) | 소유자 | 이** | 보증금 | (10%) 134,730,237 |
| 매각대상 | 경매종류 | 임의경매 | 사건접수일 | 2025-03-20 | |
| 최초경매일 | 2026-02-24 | 배당종기일 | 2025-06-20 | 경매개시일 | 2025-03-21 |
| 주의사항 | ☞ 여기 눌러 무료상담 받아보기 | ||||
기일내역
| 회차 | 매각기일 | 최저매각금액 | 결과 |
|---|---|---|---|
| 신건 | 2026-01-20 | 1,924,717,670 | 유찰 |
| 2차 | 2026-02-24 | 1,347,302,369 |
임차인현황
| 임차인 | 점유현황 | 전입/확정/배당 |
|---|---|---|
| i** | 주거임차인 401호전부(방4칸) |
전입 : 2023-11-09 / 확정 : 2023-10-25 / 배당 : 2025-06-04 |
| i** | 주거임차인 202호 |
전입 : 2024-04-22 / 확정 : X / 배당 : X |
| i** | 주거임차인 301호전부(방2칸) |
전입 : 2024-08-23 / 확정 : X / 배당 : 2025-06-12 |
| i** | 주거임차인 201호전부(방2칸) |
전입 : 2024-09-02 / 확정 : 2024-09-02 / 배당 : 2025-06-09 |
| i** | 주거임차인 302호전부(방2칸) |
전입 : 2024-09-10 / 확정 : X / 배당 : 2025-05-15 |
















![[ 제 시 외 물 건 ㉠ ]](https://filelab.co.kr/auctionimg/2026/20260103/B000253202501300005811.jpg)
![[ 주 위 환 경 ]](https://filelab.co.kr/auctionimg/2026/20260103/B000253202501300005817.jpg)
![[ 본 건 전 경 ]](https://filelab.co.kr/auctionimg/2026/20260103/B000253202501300005818.jpg)
![[ 주 위 환 경 ]](https://filelab.co.kr/auctionimg/2026/20260103/B000253202501300005819.jpg)






