화성상가경매 화성시 반송동 94 스타즈호텔프리미어동탄 제지층 제비201호 №2024 타경 71451

차별화된 5단계 맞춤형 경매 서비스 - 더블옥션
법원경매전문 (주)더블옥션은 보증보험 가입 및 법원 매수대리 등록업체로 안전하고 책임있는 컨설팅을 진행합니다. 등록번호(02-17-3)
사건번호 2024 타경 71451

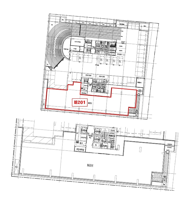
본건은 경기도 화성시 반송동 94 스타즈호텔프리미어동탄 제지층 제비201호
소재하는 근린상가경매 물건의 포스팅입니다.

건물면적 [ 690.55㎡ (208.89평) ]
대지권 [ 79.41㎡ (24.02평) ]

시세를 반영한 감정가 2,830,000,000에서
2회 유찰되어 감정가 대비 49%
최저가 1,386,700,000부터
입찰에 참여할 수 있습니다.

입찰보증금은 최저가 10%
138,670,000이며,
수원지방법원 경매3계에서
2026-02-11(10:00)
진행 예정입니다.

소재지 [지번] 경기도 화성시 반송동 94 스타즈호텔프리미어동탄 제지층 제비201호
[도로명 주소] 경기도 화성시 동탄반석로 171 지 스타즈호텔프리미어동탄 제지층 제비201호
용도 근린상가 채권자 효** 감정가 2,830,000,000
건물면적 690.55㎡ (208.89평) 채무자 아** 최저가 (49%) 1,386,700,000
대지권 79.41㎡ (24.02평) 소유자 아** 보증금 (10%) 138,670,000
매각대상 유치권, 대항력있는임차인 경매종류 강제경매 사건접수일 2024-05-24
최초경매일 2026-02-11 배당종기일 2024-08-16 경매개시일 2024-05-29
주의사항 ☞ 여기 눌러 무료상담 받아보기

기일내역

회차 매각기일 최저매각금액 결과
신건 2025-12-08 2,830,000,000 유찰
2차 2026-01-12 1,981,000,000 유찰
3차 2026-02-11 1,386,700,000
정확한 권리 분석, 꼼꼼한 현장 조사, 예상 낙찰가 제안, 대출 연계, 점유자 이전 - 더블옥션

임차인현황

임차인 점유현황 전입/확정/배당
i** 상가임차인
B2층201호345.2755㎡
확정 : X / 배당 : X
더블옥션은 법원 등록 및 보증 보험 가입 업체로 안전하고 성공적인 당신의 비즈니스를 지원합니다. - 더블옥션
외부전경
도로명주소
상가 출입문
상가 출입문 안내문 부착
내부 모습
내부 모습
위    치    도
본건 건물 전경
(동측)
본건 출입문
내부 이용상태
본건 건물 전경
(남측)
본건 진입 외부계단
본건 출입문
내부 이용상태
본건 진입 외부계단
지하2층 복도
내부 이용상태
본건 남동측 외부 출입문
지하2층 복도
내부 이용상태
광 역 위 치 도
본건 진입 외부계단 위치
(건물 남측)
건 물 개 황 도
부동산 경매 전문기업 - 더블옥션

Related Posts