사건번호 2023 타경 3842(3)
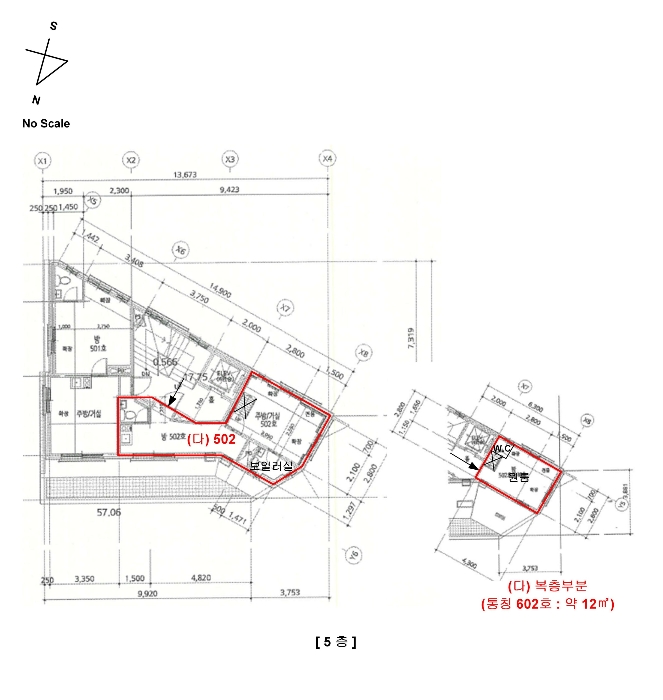
본건은 서울특별시 관악구 남현동 1082-33 한샘빌라 5층502호
소재하는 다세대(빌라)경매 물건의 포스팅입니다.
건물면적 [ 28.24㎡ (8.54평) ]
대지권 [ 18.48㎡ (5.59평) ]
시세를 반영한 감정가 409,000,000에서
2회 유찰되어 감정가 대비 64%
최저가 261,760,000부터
입찰에 참여할 수 있습니다.
입찰보증금은 최저가 10%
26,176,000이며,
서울중앙지방법원 경매12계에서
2026-02-12(10:00)
진행 예정입니다.
| 소재지 | [지번] 서울특별시 관악구 남현동 1082-33 한샘빌라 5층502호 [도로명 주소] 서울특별시 관악구 남현6길 13, 한샘빌라 5층502호 |
||||
|---|---|---|---|---|---|
| 용도 | 다세대(빌라) | 채권자 | 송** | 감정가 | 409,000,000 |
| 건물면적 | 28.24㎡ (8.54평) | 채무자 | 한** | 최저가 | (64%) 261,760,000 |
| 대지권 | 18.48㎡ (5.59평) | 소유자 | 한** | 보증금 | (10%) 26,176,000 |
| 매각대상 | 공시가격1~2억 | 경매종류 | 임의경매 | 사건접수일 | 2023-07-28 |
| 최초경매일 | 2026-02-12 | 배당종기일 | 2023-10-24 | 경매개시일 | 2023-08-07 |
| 주의사항 | ☞ 여기 눌러 무료상담 받아보기 | ||||
기일내역
| 회차 | 매각기일 | 최저매각금액 | 결과 |
|---|---|---|---|
| 2025-02-06 | 409,000,000 | 변경 | |
| 신건 | 2025-11-13 | 409,000,000 | 유찰 |
| 2차 | 2026-01-08 | 327,200,000 | 유찰 |
| 3차 | 2026-02-12 | 261,760,000 |
임차인현황
| 임차인 | 점유현황 | 전입/확정/배당 |
|---|---|---|
| i** | 주거임차인 502호 |
전입 : 2021-06-30 / 확정 : 2021-06-17 / 배당 : 2023-09-08 |
| i** | 주거임차인 601호의일부의602호 |
전입 : 2023-02-27 / 확정 : 2023-02-27 / 배당 : 2023-09-27 |



















