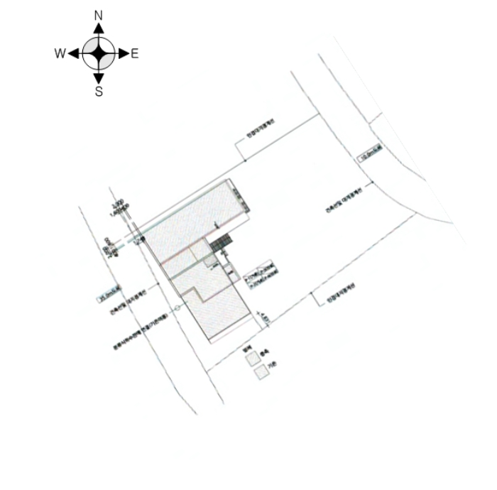
사건번호 2024 타경 1421
본건은 강원특별자치도 강릉시 대전동 916-4 가동
소재하는 공장경매 물건의 포스팅입니다.
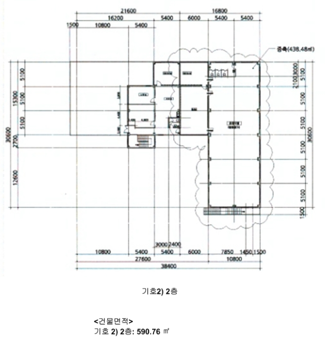
건물면적 [ 889.65㎡ (269.12평) ]
토지면적 [ 3303㎡ (999.15평) ]
시세를 반영한 감정가 1,674,499,000에서
1회 유찰되어 감정가 대비 70%
최저가 1,172,149,000부터
입찰에 참여할 수 있습니다.
입찰보증금은 최저가 10%
117,214,900이며,
강릉지원 경매2계에서
2026-02-02(10:00)
진행 예정입니다.
| 소재지 | [지번] 강원특별자치도 강릉시 대전동 916-4 가동 [도로명 주소] 강원도 강릉시 과학단지로 24-22 가동 |
||||
|---|---|---|---|---|---|
| 용도 | 공장 | 채권자 | 케** | 감정가 | 1,674,499,000 |
| 건물면적 | 889.65㎡ (269.12평) | 채무자 | ㈜** | 최저가 | (70%) 1,172,149,000 |
| 토지면적 | 3303㎡ (999.15평) | 소유자 | ㈜** | 보증금 | (10%) 117,214,900 |
| 매각대상 | 유치권 | 경매종류 | 임의경매 | 사건접수일 | 2024-08-19 |
| 최초경매일 | 2026-02-02 | 배당종기일 | 2024-11-19 | 경매개시일 | 2024-08-20 |
| 주의사항 | ☞ 여기 눌러 무료상담 받아보기 | ||||
기일내역
| 회차 | 매각기일 | 최저매각금액 | 결과 |
|---|---|---|---|
| 2025-09-01 | 1,633,739,000 | 변경 | |
| 신건 | 2025-12-22 | 1,674,499,000 | 유찰 |
| 2차 | 2026-02-02 | 1,172,149,000 |
임차인현황
| 임차인 | 점유현황 | 전입/확정/배당 |
|---|---|---|
| i** | 주거임차인 나동부분 2층일부 |
전입 : 2020-07-27 / 확정 : X / 배당 : 2024-11-20 |
| i** | 상가임차인 가동부분 2층일부점유 |
확정 : X / 배당 : X |
| i** | 상가임차인 나동부분 2층일부 |
확정 : 2024-07-16 / 배당 : 2024-10-29 |





























































