사건번호 2024 타경 569043
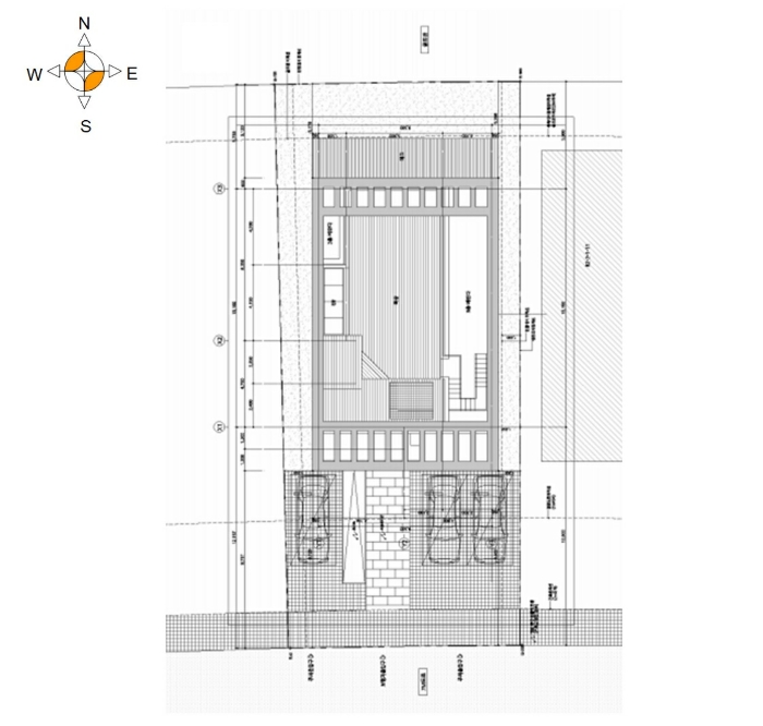
본건은 인천광역시 서구 청라동 9-10
소재하는 다가구(원룸등)경매 물건의 포스팅입니다.
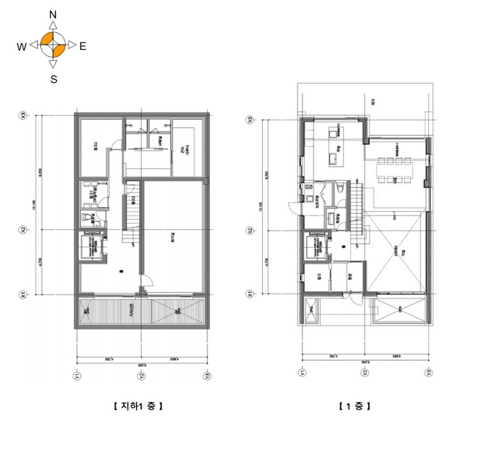
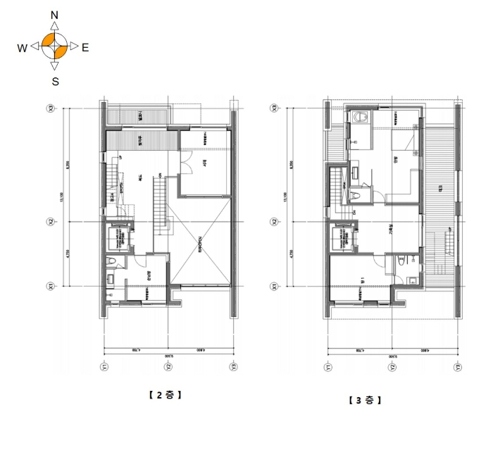
건물면적 [ 356.18㎡ (107.74평) ]
토지면적 [ 토지 매각제외 ]
시세를 반영한 감정가 1,037,377,040에서
2회 유찰되어 감정가 대비 49%
최저가 508,315,000부터
입찰에 참여할 수 있습니다.
입찰보증금은 최저가 10%
50,831,500이며,
인천지방법원 경매12계에서
2026-01-22(10:00)
진행 예정입니다.
| 소재지 | [지번] 인천광역시 서구 청라동 9-10 [도로명 주소] 인천 서구 청동로 87 |
||||
|---|---|---|---|---|---|
| 용도 | 다가구(원룸등) | 채권자 | 북** | 감정가 | 1,037,377,040 |
| 건물면적 | 356.18㎡ (107.74평) | 채무자 | ㈜** | 최저가 | (49%) 508,315,000 |
| 토지면적 | 토지 매각제외 | 소유자 | ㈜** | 보증금 | (10%) 50,831,500 |
| 매각대상 | 건물만매각, 법정지상권 | 경매종류 | 임의경매 | 사건접수일 | 2024-10-25 |
| 최초경매일 | 2026-01-22 | 배당종기일 | 2025-01-17 | 경매개시일 | 2024-10-28 |
| 주의사항 | ☞ 여기 눌러 무료상담 받아보기 | ||||
기일내역
| 회차 | 매각기일 | 최저매각금액 | 결과 |
|---|---|---|---|
| 2025-07-18 | 1,037,377,040 | 변경 | |
| 신건 | 2025-11-07 | 1,037,377,040 | 유찰 |
| 2차 | 2025-12-09 | 726,164,000 | 유찰 |
| 3차 | 2026-01-22 | 508,315,000 |
임차인현황
| 임차인 | 점유현황 | 전입/확정/배당 |
|---|---|---|
| i** | 주거임차인 | 전입 : X / 확정 : X / 배당 : X |




















