사건번호 2025 타경 4424
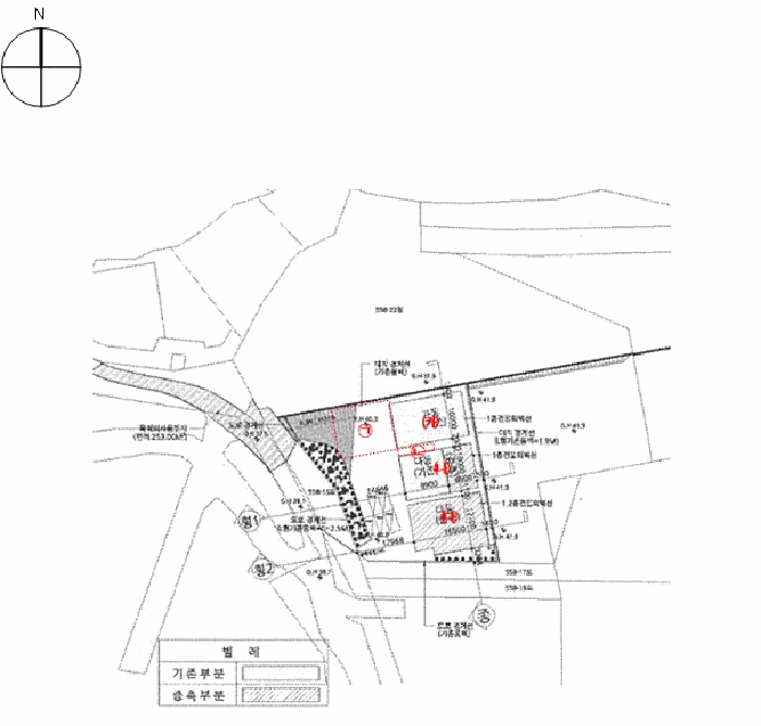
본건은 경기도 고양시 일산동구 성석동 558-24 가동
소재하는 공장경매 물건의 포스팅입니다.
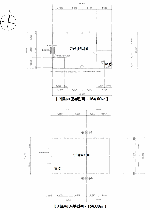
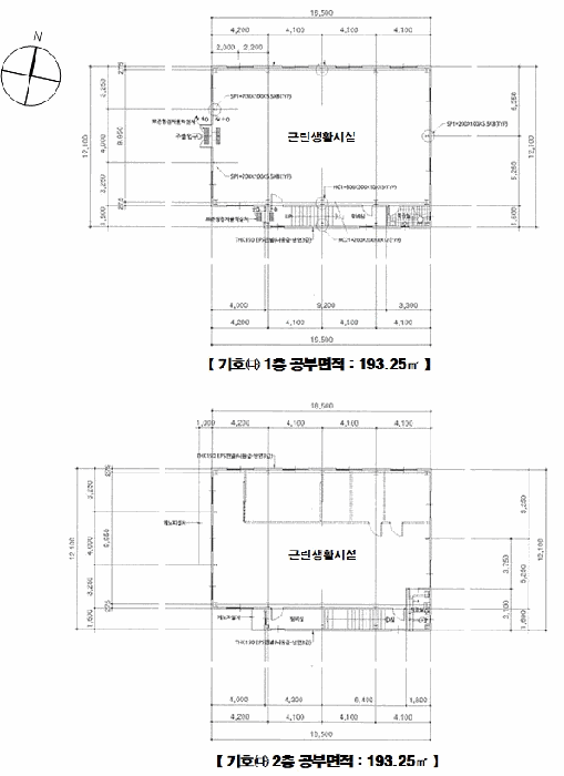
건물면적 [ 869.5㎡ (263.02평) ]
토지면적 [ 1322㎡ (399.9평) ]
시세를 반영한 감정가 2,385,732,000에서
신건으로 감정가 대비 100%
최저가 2,385,732,000부터
입찰에 참여할 수 있습니다.
입찰보증금은 최저가 10%
238,573,200이며,
고양지원 경매4계에서
2025-12-24(10:00)
진행 예정입니다.
| 소재지 | [지번] 경기도 고양시 일산동구 성석동 558-24 가동 [도로명 주소] 경기도 고양시 일산동구 성현로138번길 93 가동 |
||||
|---|---|---|---|---|---|
| 용도 | 공장 | 채권자 | 원** | 감정가 | 2,385,732,000 |
| 건물면적 | 869.5㎡ (263.02평) | 채무자 | 박** | 최저가 | (100%) 2,385,732,000 |
| 토지면적 | 1322㎡ (399.9평) | 소유자 | 이** | 보증금 | (10%) 238,573,200 |
| 매각대상 | 대항력있는임차인 | 경매종류 | 임의경매 | 사건접수일 | 2025-08-04 |
| 최초경매일 | 2025-12-24 | 배당종기일 | 2025-10-27 | 경매개시일 | 2025-08-05 |
| 주의사항 | ☞ 여기 눌러 무료상담 받아보기 | ||||
기일내역
| 회차 | 매각기일 | 최저매각금액 | 결과 |
|---|---|---|---|
| 신건 | 2025-12-24 | 2,385,732,000 |
임차인현황
| 임차인 | 점유현황 | 전입/확정/배당 |
|---|---|---|
| i** | 공장임차인 다동1층 |
확정 : X / 배당 : X |
| i** | 공장임차인 나동1층 |
확정 : X / 배당 : X |
| i** | 공장임차인 가동1층 |
확정 : X / 배당 : X |






























