사건번호 2024 타경 47799
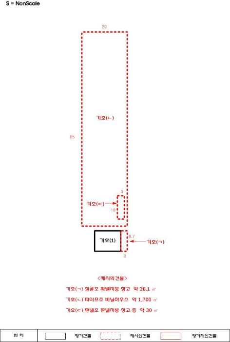
본건은 경기도 김포시 고촌읍 신곡리 730-4 1동외 1필지
소재하는 창고경매 물건의 포스팅입니다.
건물면적 [ 1855.28㎡ (561.22평) ]
토지면적 [ 2668㎡ (807.07평) ]
시세를 반영한 감정가 982,770,860에서
2회 유찰되어 감정가 대비 49%
최저가 481,558,000부터
입찰에 참여할 수 있습니다.
입찰보증금은 최저가 10%
48,155,800이며,
부천지원 경매7계에서
2026-01-27(10:00)
진행 예정입니다.
| 소재지 | [지번] 경기도 김포시 고촌읍 신곡리 730-4 1동외 1필지 [도로명 주소] 경기도 김포시 고촌읍 김포대로319번길 77-87 1동외 1필지 |
||||
|---|---|---|---|---|---|
| 용도 | 창고 | 채권자 | 강** | 감정가 | 982,770,860 |
| 건물면적 | 1855.28㎡ (561.22평) | 채무자 | 장**외1명 | 최저가 | (49%) 481,558,000 |
| 토지면적 | 2668㎡ (807.07평) | 소유자 | 장** | 보증금 | (10%) 48,155,800 |
| 매각대상 | 경매종류 | 임의경매 | 사건접수일 | 2024-08-21 | |
| 최초경매일 | 2026-01-27 | 배당종기일 | 2024-11-25 | 경매개시일 | 2024-08-23 |
| 주의사항 | ☞ 여기 눌러 무료상담 받아보기 | ||||
기일내역
| 회차 | 매각기일 | 최저매각금액 | 결과 |
|---|---|---|---|
| 신건 | 2025-11-06 | 982,770,860 | 유찰 |
| 2차 | 2025-12-11 | 687,940,000 | 유찰 |
| 3차 | 2026-01-27 | 481,558,000 |
임차인현황
| 임차인 | 점유현황 | 전입/확정/배당 |
|---|---|---|
| 조사된 임차인 내역 없음 | ||























