사건번호 2025 타경 50553
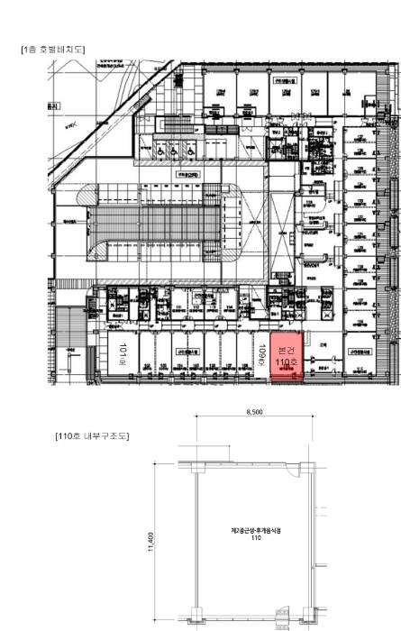
본건은 경기도 하남시 감이동 474-1 현대테라타워감일 제1층 제110호
소재하는 아파트형공장경매 물건의 포스팅입니다.
건물면적 [ 96.9㎡ (29.31평) ]
대지권 [ 26.88㎡ (8.13평) ]
시세를 반영한 감정가 1,680,000,000에서
2회 유찰되어 감정가 대비 49%
최저가 823,200,000부터
입찰에 참여할 수 있습니다.
입찰보증금은 최저가 10%
82,320,000이며,
성남지원 경매7계에서
2026-01-05(10:00)
진행 예정입니다.
| 소재지 | [지번] 경기도 하남시 감이동 474-1 현대테라타워감일 제1층 제110호 [도로명 주소] 경기도 하남시 신우실로 100 현대테라타워감일 제1층 제110호 |
||||
|---|---|---|---|---|---|
| 용도 | 아파트형공장 | 채권자 | 엠** | 감정가 | 1,680,000,000 |
| 건물면적 | 96.9㎡ (29.31평) | 채무자 | 이** | 최저가 | (49%) 823,200,000 |
| 대지권 | 26.88㎡ (8.13평) | 소유자 | 이** | 보증금 | (10%) 82,320,000 |
| 매각대상 | 경매종류 | 임의경매 | 사건접수일 | 2025-01-09 | |
| 최초경매일 | 2026-01-05 | 배당종기일 | 2025-03-17 | 경매개시일 | 2025-01-10 |
| 주의사항 | ☞ 여기 눌러 무료상담 받아보기 | ||||
기일내역
| 회차 | 매각기일 | 최저매각금액 | 결과 |
|---|---|---|---|
| 신건 | 2025-10-20 | 1,680,000,000 | 유찰 |
| 2차 | 2025-11-24 | 1,176,000,000 | 유찰 |
| 3차 | 2026-01-05 | 823,200,000 |
임차인현황
| 임차인 | 점유현황 | 전입/확정/배당 |
|---|---|---|
| 조사된 임차인 내역 없음 | ||





















