사건번호 2024 타경 63556
본건은 경기도 고양시 덕양구 내유동 672-38 외 8필지
소재하는 주택경매 물건의 포스팅입니다.
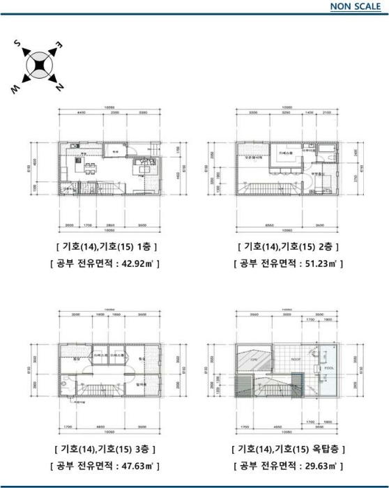
건물면적 [ 1702.74㎡ (515.08평) ]
토지면적 [ 1682㎡ (508.8평) ]
시세를 반영한 감정가 4,499,074,160에서
1회 유찰되어 감정가 대비 70%
최저가 3,149,352,000부터
입찰에 참여할 수 있습니다.
입찰보증금은 최저가 10%
314,935,200이며,
고양지원 경매4계에서
2025-10-15(10:00)
진행 예정입니다.
| 소재지 | [지번] 경기도 고양시 덕양구 내유동 672-38 외 8필지 | ||||
|---|---|---|---|---|---|
| 용도 | 주택 | 채권자 | 도** | 감정가 | 4,499,074,160 |
| 건물면적 | 1702.74㎡ (515.08평) | 채무자 | 김** | 최저가 | (70%) 3,149,352,000 |
| 토지면적 | 1682㎡ (508.8평) | 소유자 | 김** | 보증금 | (10%) 314,935,200 |
| 매각대상 | 유치권 | 경매종류 | 임의경매 | 사건접수일 | 2024-02-20 |
| 최초경매일 | 2025-10-15 | 배당종기일 | 2024-05-24 | 경매개시일 | 2024-02-27 |
| 주의사항 | ☞ 여기 눌러 무료상담 받아보기 | ||||
기일내역
| 회차 | 매각기일 | 최저매각금액 | 결과 |
|---|---|---|---|
| 2025-03-12 | 4,499,074,160 | 변경 | |
| 2025-06-25 | 4,499,074,160 | 변경 | |
| 신건 | 2025-09-03 | 4,499,074,160 | 유찰 |
| 2차 | 2025-10-15 | 3,149,352,000 |
임차인현황
| 임차인 | 점유현황 | 전입/확정/배당 |
|---|---|---|
| 조사된 임차인 내역 없음 | ||


































































