강남주택경매 강남구 논현동 162-13 №2025 타경 100327

차별화된 5단계 맞춤형 경매 서비스 - 더블옥션
법원경매전문 (주)더블옥션은 보증보험 가입 및 법원 매수대리 등록업체로 안전하고 책임있는 컨설팅을 진행합니다. 등록번호(02-17-3)
사건번호 2025 타경 100327

본건은 서울특별시 강남구 논현동 162-13
소재하는 근린주택경매 물건의 포스팅입니다.

건물면적 [ 767.34㎡ (232.12평) ]
토지면적 [ 266.9㎡ (80.74평) ]

시세를 반영한 감정가 10,629,192,440에서
1회 유찰되어 감정가 대비 80%
최저가 8,503,353,000부터
입찰에 참여할 수 있습니다.

입찰보증금은 최저가 10%
850,335,300이며,
서울중앙지방법원 경매1계에서
2025-10-14(10:00)
진행 예정입니다.

소재지 [지번] 서울특별시 강남구 논현동 162-13
[도로명 주소] 서울 강남구 강남대로122길 21
용도 근린주택 채권자 여** 감정가 10,629,192,440
건물면적 767.34㎡ (232.12평) 채무자 이** 최저가 (80%) 8,503,353,000
토지면적 266.9㎡ (80.74평) 소유자 이** 보증금 (10%) 850,335,300
매각대상 위반건축물, 대항력있는임차인 경매종류 임의경매 사건접수일 2025-01-06
최초경매일 2025-10-14 배당종기일 2025-04-12 경매개시일 2025-01-09
주의사항 ☞ 여기 눌러 무료상담 받아보기

기일내역

회차 매각기일 최저매각금액 결과
신건 2025-09-02 10,629,192,440 유찰
2차 2025-10-14 8,503,353,000
정확한 권리 분석, 꼼꼼한 현장 조사, 예상 낙찰가 제안, 대출 연계, 점유자 이전 - 더블옥션

임차인현황

임차인 점유현황 전입/확정/배당
i** 주거임차인
주거용 302호2018.07.24.~
전입 : 2018-07-31 / 확정 : X / 배당 : 2025-04-09
i** 상가임차인
점포 1층 104호2019.06.18.~2020.06.17.
전입 : / 확정 : X / 배당 : X
i** 상가임차인
점포 104호
전입 : / 확정 : X / 배당 : X
i** 상가임차인
점포 B 102호
전입 : / 확정 : X / 배당 : X
i** 주거임차인
주거용 502호
전입 : 2020-02-06 / 확정 : X / 배당 : X
i** 주거임차인
주거용 402호2020.02.28.~
전입 : 2020-03-04 / 확정 : 2020-02-11 / 배당 : 2025-03-19
i** 주거임차인
주거용 201호2020.11.17.~
전입 : 2020-11-18 / 확정 : 2020-10-23 / 배당 : 2025-02-07
i** 주거임차인
주거용 401호
전입 : 2022-01-20 / 확정 : X / 배당 : X
i** 주거임차인
주거용 303호2022.05.12.~
전입 : 2022-05-12 / 확정 : 2022-04-20 / 배당 : 2025-02-06
i** 주거임차인
주거용 305호2022.05.01.~
전입 : 2022-06-24 / 확정 : 2022-07-07 / 배당 : 2025-02-07
i** 주거임차인
주거용 306호2022.06.27.~
전입 : 2022-07-01 / 확정 : 2022-12-15 / 배당 : 2025-03-17
i** 주거임차인
주거용 501호2022.10.27.~
전입 : 2022-10-28 / 확정 : 2022-10-28 / 배당 : 2022-03-06
i** 주거임차인
주거및영업용 B1층2024.11.07.~
전입 : 2022-11-29 / 확정 : X / 배당 : 2025-03-27
i** 주거임차인
주거용 403호2023.04.28.~
전입 : 2023-04-25 / 확정 : 2023-04-03 / 배당 : 2025-01-22
i** 주거임차인
주거용 205호2023.04.27.~
전입 : 2023-04-27 / 확정 : 2023-04-10 / 배당 : 2025-03-05
i** 주거임차인
주거용 206호2023.05.21.~
전입 : 2023-05-22 / 확정 : 2023-04-24 / 배당 : 2025-02-17
i** 주거임차인
주거용 301호2023.08.13.~
전입 : 2023-08-14 / 확정 : 2023-07-17 / 배당 : 2025-02-06
i** 주거임차인
주거용 203호2023.12.11.~
전입 : 2023-12-11 / 확정 : 2023-11-20 / 배당 : 2025-01-17
i** 주거임차인
주거용 202호2024.06.01.~
전입 : 2024-06-03 / 확정 : 2024-06-03 / 배당 : 2025-01-16
i** 상가임차인
점포 1층 102호2024.05.22.~2025.05.21.
전입 : / 확정 : X / 배당 : X
i** 상가임차인
점포 1층2024.08.01.~2026.07.31.
전입 : / 확정 : X / 배당 : X
i** 주거임차인
주거용 401호2024.10.31.~
전입 : 2025-01-23 / 확정 : 2025-01-23 / 배당 : 2025-02-18
더블옥션은 법원 등록 및 보증 보험 가입 업체로 안전하고 성공적인 당신의 비즈니스를 지원합니다. - 더블옥션
도로명주소
본건 전경
1층 상가
지하층1
지하층2
201호
301호
401호
501호







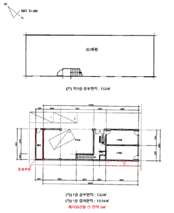
내 부 구 조 도
내 부 구 조 도
내 부 구 조 도
건 물 개 황 도
위 치 도
광 역 위 치 도
지 적 도
부동산 경매 전문기업 - 더블옥션

Related Posts