사건번호 2024 타경 91004
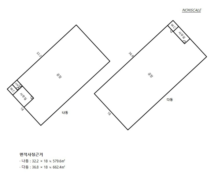
본건은 경기도 화성시 팔탄면 덕우리 226-3 가동
소재하는 공장경매 물건의 포스팅입니다.
시세를 반영한 감정가 4,310,198,000에서
신건으로 감정가 대비 100%
최저가 4,310,198,000부터
입찰에 참여할 수 있습니다.
입찰보증금은 최저가 10%
431,019,800이며,
수원지방법원 경매8계에서
2025-07-15(10:00)
진행 예정입니다.
| 소재지 | [지번] 경기도 화성시 팔탄면 덕우리 226-3 가동 [도로명 주소] 경기도 화성시 팔탄면 온천로 16-36 가동 |
||||
|---|---|---|---|---|---|
| 용도 | 공장 | 채권자 | 중** | 감정가 | 4,310,198,000 |
| 건물면적 | – | 채무자 | 김** | 최저가 | (100%) 4,310,198,000 |
| 소유자 | 김** | 보증금 | (10%) 431,019,800 | ||
| 매각대상 | 경매종류 | 임의경매 | 사건접수일 | 2024-09-26 | |
| 최초경매일 | 2025-07-15 | 배당종기일 | 2024-12-11 | 경매개시일 | 2024-09-27 |
| 주의사항 | ☞ 여기 눌러 무료상담 받아보기 | ||||
기일내역
| 회차 | 매각기일 | 최저매각금액 | 결과 |
|---|---|---|---|
| 신건 | 2025-07-15 | 4,310,198,000 |
임차인현황
| 임차인 | 점유현황 | 전입/확정/배당 |
|---|---|---|
| 조사된 임차인 내역 없음 | ||
















































