사건번호 2024 타경 47607
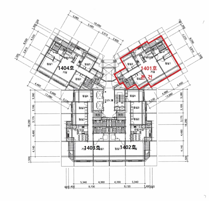
본건은 경기도 김포시 풍무동 764 풍무자이 제508동 제14층 제1401호
소재하는 아파트경매 물건의 포스팅입니다.
건물면적 [ 106.4㎡ (32.19평) ]
대지권 [ 58㎡ (17.54평) ]
시세를 반영한 감정가 534,000,000에서
1회 유찰되어 감정가 대비 70%
최저가 373,800,000부터
입찰에 참여할 수 있습니다.
입찰보증금은 최저가 10%
37,380,000이며,
부천지원 경매10계에서
2025-05-29(10:00)
진행 예정입니다.
| 소재지 | [지번] 경기도 김포시 풍무동 764 풍무자이 제508동 제14층 제1401호 [도로명 주소] 경기도 김포시 풍무로96번길 42 풍무자이 제508동 제14층 제1401호 |
||||
|---|---|---|---|---|---|
| 용도 | 아파트 | 채권자 | ㈜**외1명 | 감정가 | 534,000,000 |
| 건물면적 | 106.4㎡ (32.19평) | 채무자 | 이** | 최저가 | (70%) 373,800,000 |
| 대지권 | 58㎡ (17.54평) | 소유자 | 이** | 보증금 | (10%) 37,380,000 |
| 매각대상 | 경매종류 | 임의경매 | 사건접수일 | 2024-08-20 | |
| 최초경매일 | 2025-05-29 | 배당종기일 | 2024-11-15 | 경매개시일 | 2024-08-21 |
| 주의사항 | ☞ 여기 눌러 무료상담 받아보기 | ||||
기일내역
| 회차 | 매각기일 | 최저매각금액 | 결과 |
|---|---|---|---|
| 신건 | 2025-04-24 | 534,000,000 | 유찰 |
| 2차 | 2025-05-29 | 373,800,000 |
임차인현황
| 임차인 | 점유현황 | 전입/확정/배당 |
|---|---|---|
| 조사된 임차인 내역 없음 | ||














