사건번호 2024 타경 57629(5)
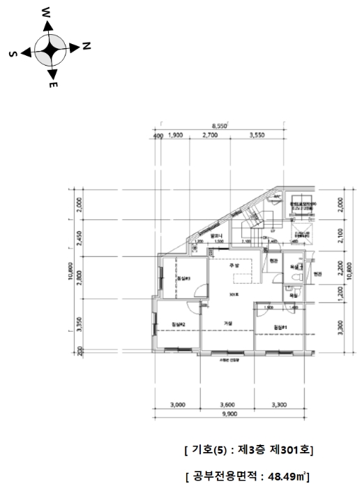
본건은 서울특별시 은평구 갈현동 435-37 호안빌 제3층 제301호
소재하는 다세대(빌라)경매 물건의 포스팅입니다.
건물면적 [ 48.49㎡ (14.67평) ]
대지권 [ 28.72㎡ (8.69평) ]
시세를 반영한 감정가 505,000,000에서
1회 유찰되어 감정가 대비 80%
최저가 404,000,000부터
입찰에 참여할 수 있습니다.
입찰보증금은 최저가 10%
40,400,000이며,
서울서부지방법원 경매6계에서
2025-05-07(10:00)
진행 예정입니다.
| 소재지 | [지번] 서울특별시 은평구 갈현동 435-37 호안빌 제3층 제301호 [도로명 주소] 서울특별시 은평구 갈현로37길 4 호안빌 제3층 제301호 |
||||
|---|---|---|---|---|---|
| 용도 | 다세대(빌라) | 채권자 | 명**외1명 | 감정가 | 505,000,000 |
| 건물면적 | 48.49㎡ (14.67평) | 채무자 | ㈜** | 최저가 | (80%) 404,000,000 |
| 대지권 | 28.72㎡ (8.69평) | 소유자 | ㈜** | 보증금 | (10%) 40,400,000 |
| 매각대상 | 경매종류 | 임의경매 | 사건접수일 | 2024-06-25 | |
| 최초경매일 | 2025-05-07 | 배당종기일 | 2024-09-06 | 경매개시일 | 2024-06-26 |
| 주의사항 | ☞ 여기 눌러 무료상담 받아보기 | ||||
기일내역
| 회차 | 매각기일 | 최저매각금액 | 결과 |
|---|---|---|---|
| 2025-02-25 | 505,000,000 | 변경 | |
| 신건 | 2025-04-01 | 505,000,000 | 유찰 |
| 2차 | 2025-05-07 | 404,000,000 |
임차인현황
| 임차인 | 점유현황 | 전입/확정/배당 |
|---|---|---|
| i** | 주거임차인 301호전부 |
전입 : 2023-11-21 / 확정 : 2023-10-26 / 배당 : 2024-08-16 |





















