은평빌라경매 은평구 갈현동 435-37 호안빌 제2층 제201호 №2024 타경 57629(2)

차별화된 5단계 맞춤형 경매 서비스 - 더블옥션

법원경매전문 (주)더블옥션은 보증보험 가입 및 법원 매수대리 등록업체로 안전하고 책임있는 컨설팅을 진행합니다. 등록번호(02-17-3)

사건번호 2024 타경 57629(2)

본건은 서울특별시 은평구 갈현동 435-37 호안빌 제2층 제201호
소재하는 다세대(빌라)경매 물건의 포스팅입니다.

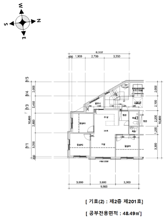
건물면적 [ 48.49㎡ (14.67평) ]
대지권 [ 28.72㎡ (8.69평) ]

시세를 반영한 감정가 505,000,000에서
1회 유찰되어 감정가 대비 80%
최저가 404,000,000부터
입찰에 참여할 수 있습니다.

입찰보증금은 최저가 10%
40,400,000이며,
서울서부지방법원 경매6계에서
2025-05-07(10:00)
진행 예정입니다.

소재지 [지번] 서울특별시 은평구 갈현동 435-37 호안빌 제2층 제201호
[도로명 주소] 서울특별시 은평구 갈현로37길 4 호안빌 제2층 제201호
용도 다세대(빌라) 채권자 명**외1명 감정가 505,000,000
건물면적 48.49㎡ (14.67평) 채무자 ㈜** 최저가 (80%) 404,000,000
대지권 28.72㎡ (8.69평) 소유자 ㈜** 보증금 (10%) 40,400,000
매각대상 경매종류 임의경매 사건접수일 2024-06-25
최초경매일 2025-05-07 배당종기일 2024-09-06 경매개시일 2024-06-26
주의사항 ☞ 여기 눌러 무료상담 받아보기

기일내역

회차 매각기일 최저매각금액 결과
2025-02-25 505,000,000 변경
신건 2025-04-01 505,000,000 유찰
2차 2025-05-07 404,000,000
정확한 권리 분석, 꼼꼼한 현장 조사, 예상 낙찰가 제안, 대출 연계, 점유자 이전 - 더블옥션

임차인현황

임차인 점유현황 전입/확정/배당
i** 주거임차인
전부
전입 : 2023-10-30 / 확정 : 2023-10-30 / 배당 : 2024-07-23
더블옥션은 법원 등록 및 보증 보험 가입 업체로 안전하고 성공적인 당신의 비즈니스를 지원합니다. - 더블옥션

















부동산 경매 전문기업 - 더블옥션

Related Posts