사건번호 2024 타경 1698(1)
본건은 충청남도 천안시 서북구 성환읍 매주리 116-1 주건축물제1동외 1필지
소재하는 근린주택경매 물건의 포스팅입니다.
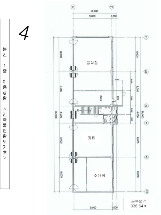
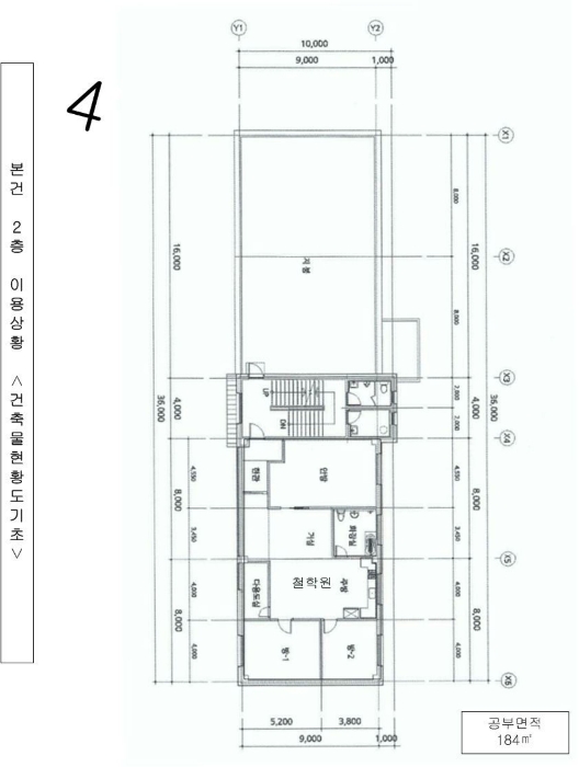
건물면적 [ 529.34㎡ (160.12평) ]
토지면적 [ 1748㎡ (528.77평) ]
시세를 반영한 감정가 1,643,645,480에서
1회 유찰되어 감정가 대비 70%
최저가 1,150,552,000부터
입찰에 참여할 수 있습니다.
입찰보증금은 최저가 10%
115,055,200이며,
천안지원 경매6계에서
2025-04-22(10:00)
진행 예정입니다.
| 소재지 | [지번] 충청남도 천안시 서북구 성환읍 매주리 116-1 주건축물제1동외 1필지 [도로명 주소] 충청남도 천안시 서북구 성환읍 매주3길 3 주건축물제1동 |
||||
|---|---|---|---|---|---|
| 용도 | 근린주택 | 채권자 | 천** | 감정가 | 1,643,645,480 |
| 건물면적 | 529.34㎡ (160.12평) | 채무자 | 김** | 최저가 | (70%) 1,150,552,000 |
| 토지면적 | 1748㎡ (528.77평) | 소유자 | 김** | 보증금 | (10%) 115,055,200 |
| 매각대상 | 유치권, 대항력있는임차인 | 경매종류 | 임의경매 | 사건접수일 | 2024-03-15 |
| 최초경매일 | 2025-04-22 | 배당종기일 | 2024-06-21 | 경매개시일 | 2024-03-18 |
| 주의사항 | ☞ 여기 눌러 무료상담 받아보기 | ||||
기일내역
| 회차 | 매각기일 | 최저매각금액 | 결과 |
|---|---|---|---|
| 2024-09-03 | 1,654,092,840 | 변경 | |
| 2024-12-24 | 1,643,645,480 | 변경 | |
| 2차 | 2025-03-18 | 1,643,645,480 | 유찰 |
| 3차 | 2025-04-22 | 1,150,552,000 |
임차인현황
| 임차인 | 점유현황 | 전입/확정/배당 |
|---|---|---|
| i** | 상가임차인 미상 |
전입 : / 확정 : X / 배당 : X |
| i** | 주거및점포 미상 |
전입 : 2023-02-24 / 확정 : X / 배당 : X |
| i** | 상가임차인 104호 |
전입 : / 확정 : 2023-03-08 / 배당 : 2024-05-23 |
| i** | 상가임차인 미상 |
전입 : / 확정 : X / 배당 : X |
| i** | 상가임차인 미상 |
전입 : / 확정 : X / 배당 : X |
| i** | 주거및점포 미상 |
전입 : 2024-03-08 / 확정 : X / 배당 : X |
| i** | 상가임차인 미상 |
전입 : / 확정 : X / 배당 : X |







































