사건번호 2023 타경 83819
본건은 경기도 양주시 장흥면 부곡리 85-26 제1동외 2필지
소재하는 근린시설경매 물건의 포스팅입니다.
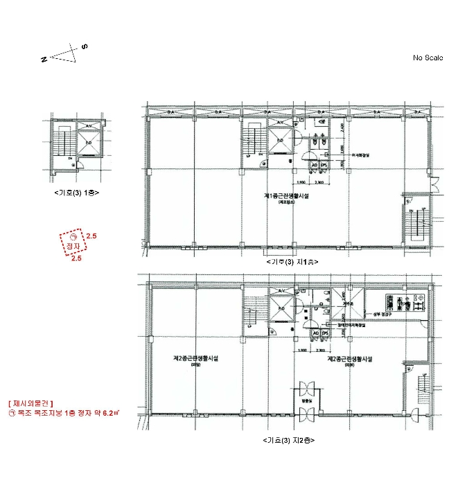
건물면적 [ 989.2㎡ (299.23평) ]
토지면적 [ 전체:11994㎡ (3628.17평)
매각지분:11528.29㎡ (3487.29평) ]
시세를 반영한 감정가 4,633,676,290에서
1회 유찰되어 감정가 대비 24%
최저가 1,112,546,000부터
입찰에 참여할 수 있습니다.
입찰보증금은 최저가 20%
222,509,200이며,
의정부지방법원 경매5계에서
2026-02-19(10:30)
진행 예정입니다.
| 소재지 | [지번] 경기도 양주시 장흥면 부곡리 85-26 제1동외 2필지 [도로명 주소] 경기도 양주시 장흥면 가마골로258번길 51-16 제1동외 2필지 |
||||
|---|---|---|---|---|---|
| 용도 | 근린시설 | 채권자 | ㈜** | 감정가 | 4,633,676,290 |
| 건물면적 | 989.2㎡ (299.23평) | 채무자 | 신** | 최저가 | (24%) 1,112,546,000 |
| 토지면적 | 전체:11994㎡ (3628.17평) 매각지분:11528.29㎡ (3487.29평) |
소유자 | 신** | 보증금 | (20%) 222,509,200 |
| 매각대상 | 건물전부, 토지지분, 재매각 | 경매종류 | 임의경매 | 사건접수일 | 2023-11-01 |
| 최초경매일 | 2026-02-19 | 배당종기일 | 2024-01-17 | 경매개시일 | 2023-11-02 |
| 주의사항 | ☞ 여기 눌러 무료상담 받아보기 | ||||
기일내역
| 회차 | 매각기일 | 최저매각금액 | 결과 |
|---|---|---|---|
| 2025-04-24 | 1,589,351,000 | 변경 | |
| 4차 | 2025-09-11 | 1,589,351,000 | 유찰 |
| 2025-10-23 | 1,112,546,000 | 변경 | |
| 5차 | 2026-02-19 | 1,112,546,000 |
임차인현황
| 임차인 | 점유현황 | 전입/확정/배당 |
|---|---|---|
| 조사된 임차인 내역 없음 | ||



















































