사건번호 2022 타경 2626
본건은 전라남도 광양시 광양읍 인서리 149 외 2필지
소재하는 의료시설경매 물건의 포스팅입니다.
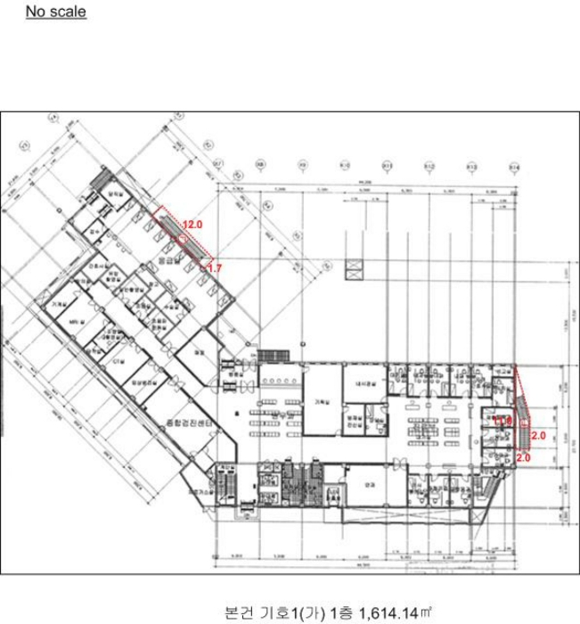
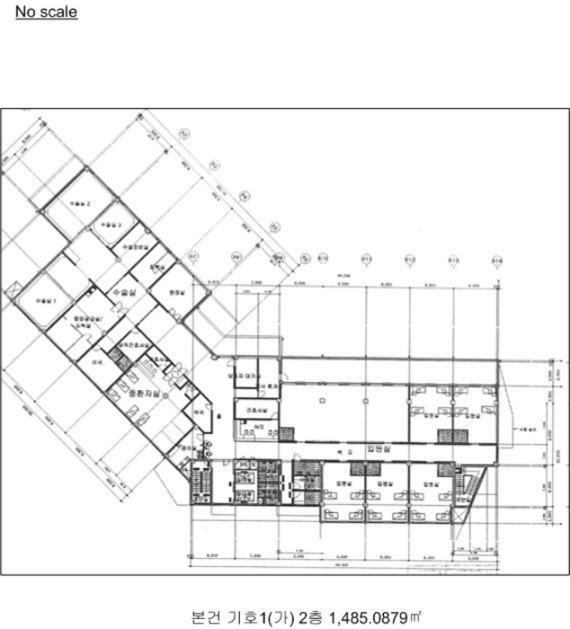
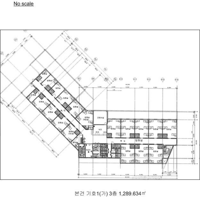
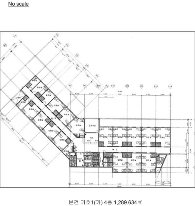
건물면적 [ 7838.93㎡ (2371.27평) ]
토지면적 [ 4368㎡ (1321.31평) ]
시세를 반영한 감정가 11,546,043,300에서
1회 유찰되어 감정가 대비 36%
최저가 4,138,102,000부터
입찰에 참여할 수 있습니다.
입찰보증금은 최저가 10%
413,810,200이며,
순천지원 경매8계에서
2026-02-02(10:00)
진행 예정입니다.
| 소재지 | [지번] 전라남도 광양시 광양읍 인서리 149 외 2필지 [도로명 주소] 전라남도 광양시 광양읍 숲샘길 80 외 2필지 |
||||
|---|---|---|---|---|---|
| 용도 | 의료시설 | 채권자 | 광** | 감정가 | 11,546,043,300 |
| 건물면적 | 7838.93㎡ (2371.27평) | 채무자 | 서** | 최저가 | (36%) 4,138,102,000 |
| 토지면적 | 4368㎡ (1321.31평) | 소유자 | 의** | 보증금 | (10%) 413,810,200 |
| 매각대상 | 허가취소, 재매각, 유치권, 대항력있는임차인 | 경매종류 | 임의경매 | 사건접수일 | 2022-06-22 |
| 최초경매일 | 2026-02-02 | 배당종기일 | 2022-09-19 | 경매개시일 | 2022-06-23 |
| 주의사항 | ☞ 여기 눌러 무료상담 받아보기 | ||||
기일내역
| 회차 | 매각기일 | 최저매각금액 | 결과 |
|---|---|---|---|
| 4차 | 2025-08-04 | 5,172,627,000 | 유찰 |
| 2025-09-15 | 4,138,102,000 | 변경 | |
| 2025-11-03 | 4,138,102,000 | 변경 | |
| 5차 | 2026-02-02 | 4,138,102,000 |
임차인현황
| 임차인 | 점유현황 | 전입/확정/배당 |
|---|---|---|
| i** | 주거임차인 149-2번지및149-5번지33.0580㎡ |
전입 : 2014-01-06 / 확정 : X / 배당 : X |
| i** | 주거임차인 7,805.53㎡ |
전입 : 2019-07-24 / 확정 : X / 배당 : X |
| i** | 주거임차인 지하1층일부722.418㎡ |
전입 : X / 확정 : X / 배당 : 2023-03-14 |



































































